PHENOMENAL LOCATION. Our Rocky Mountain vacation home features a huge comfortable great room with an unparalleled mountain view (STR license 23-ZONE3439).
With this home you get it all:
Best views in Estes Park
Hiking trails within walking distance (hike to Lily Lake, Estes Cone, or Teddy's Teeth from the house!)
Extremely spacious home to spread out
Private bathrooms in every bedroom
Large "backyard" that borders that National Park
Frequent wildlife visitors
Giant deck
Large gas fireplace for cozy nights
Unique interior waterfall adds ambiance and much needed humidity
Heated floors
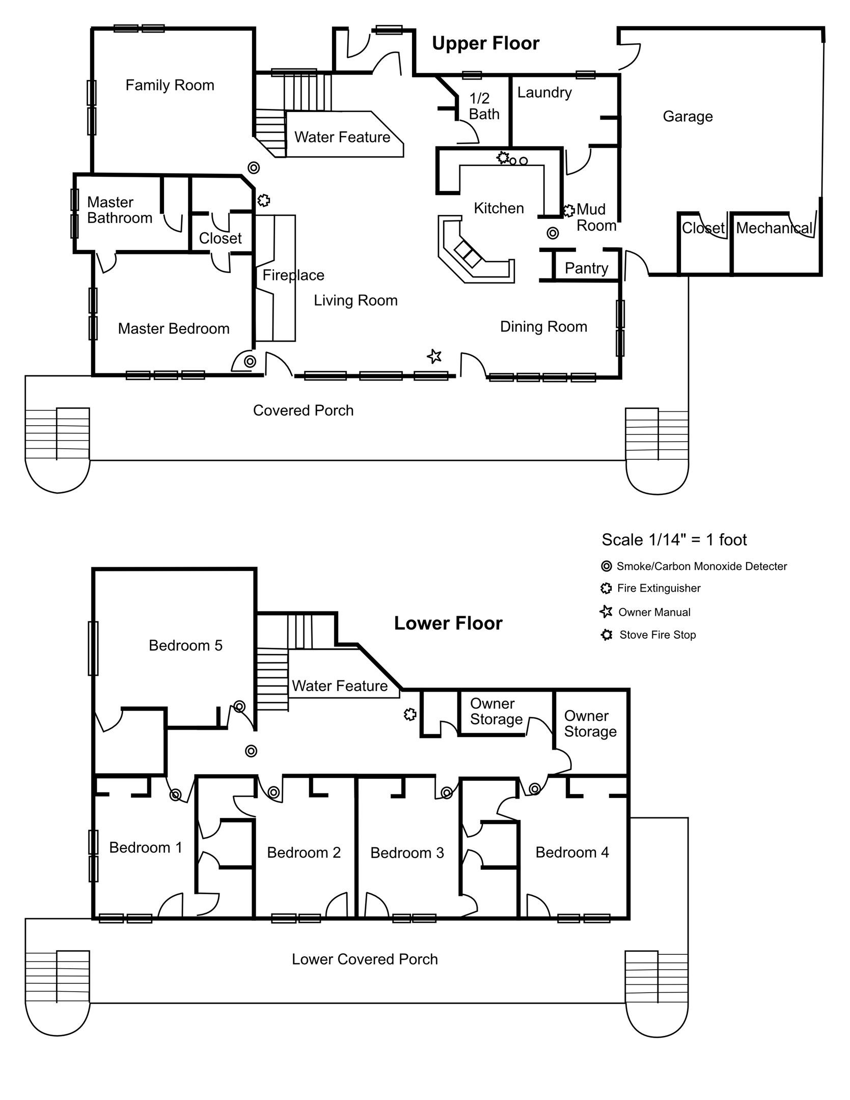
Living, dining and kitchen areas flow together with wood and stone, log beams and big moss rock fireplace. Large dining table! Spacious master bedroom offers a king bed and bath with oversized jetted tub and walk-in shower. Downstairs has several more bedrooms with attached baths. A beautiful 2-story interior waterfall adds beauty and comfort. Elk & deer galore! Walk to RMNP.
Cannot beat this VIEW! The home sits high in Windcliff Estates, one of the most sought-after neighborhoods in Estes Park. Travel perfectly maintained roads to this ultimate vacation cabin. Just a short walk into Rocky Mountain National Park. Park in the 2-car garage or under the portico for easy access (just one step up) into the main floor. Plenty of parking in the driveway too. The gently sloping oversized lot is great for kids to play outside in the summer or sled in the winter. Perfect spot for a small family reunion or church retreat.
Main level/Upstairs:
Walk in beside the TWO-STORY WATERFALL that flows down a wall into a small "pond" below.
LIVING ROOM with lots of comfy seating, 14-foot wood ceilings with massive log beams.
Floor to ceiling windows with expansive view of the continental divide. Arguably the best view in Estes Park!
Soaring stone gas fireplace.
Big flat-screen TV
Powder bath
KITCHEN has it all: Gas range. New dishwasher. Large fridge. Lots of counter space. Big island. Large pantry....Everything you need to cook and enjoy a big family meal. Well-stocked Safeway in town.
DINING ROOM has a sprawling hand-made table with lots of serving space.
DEN just off the living room has more seating, an antique piano and another TV for games.
MASTER BED/BATH is on the main level. King-size log bed. Desk. TV. Walk-in closet. The bathroom has a big walk-in shower with rails and a shower seat available. Or soak in the jetted tub.
The COVERED DECK spreads the full length of the house (over 50 feet long) with lots of hand-made rockers to enjoy that phenomenal MOUNTAIN VIEW!
Also on the main level: The LAUNDRY ROOM with a front-loading washer and dryer and a MUD ROOM with plenty of hooks to hang your coats.
Downstairs/Walkout
Walk downstairs beside the waterfall, then take your pick from multiple bedrooms with king beds that each have private access to the back porch. All of them share the view of the mountains. There are 2 jack-and-jill baths, so each bedroom has its own sink/toilet and shares a tub/shower. There is also a family bedroom with multiple beds and another bathroom.
It took several years to find the perfect spot for our family vacation home. Lots of wonderful memories have been made here. Now your family can make your own, enjoying the wonder and adventure of this private mountain get-away. When you dream of the perfect Rocky Mountain home, you will find it here.
Note: We have adjusted our rates to make this house a bit more accessible for smaller groups. The nightly rate goes up for more people so be sure to enter your total group size to get accurate pricing.
90% refund if reservation is canceled at least 60 days before the arrival date 50% refund if reservation is canceled at least 7 days before the arrival date
Eagles Rest
Period:
This property is not Available for the specified period
Property Description
PHENOMENAL LOCATION. Our Rocky Mountain vacation home features a huge comfortable great room with an unparalleled mountain view (STR license 23-ZONE3439).
With this home you get it all:
Best views in Estes Park
Hiking trails within walking distance (hike to Lily Lake, Estes Cone, or Teddy's Teeth from the house!)
Extremely spacious home to spread out
Private bathrooms in every bedroom
Large "backyard" that borders that National Park
Frequent wildlife visitors
Giant deck
Large gas fireplace for cozy nights
Unique interior waterfall adds ambiance and much needed humidity
Heated floors
Living, dining and kitchen areas flow together with wood and stone, log beams and big moss rock fireplace. Large dining table! Spacious master bedroom offers a king bed and bath with oversized jetted tub and walk-in shower. Downstairs has several more bedrooms with attached baths. A beautiful 2-story interior waterfall adds beauty and comfort. Elk & deer galore! Walk to RMNP.
Cannot beat this VIEW! The home sits high in Windcliff Estates, one of the most sought-after neighborhoods in Estes Park. Travel perfectly maintained roads to this ultimate vacation cabin. Just a short walk into Rocky Mountain National Park. Park in the 2-car garage or under the portico for easy access (just one step up) into the main floor. Plenty of parking in the driveway too. The gently sloping oversized lot is great for kids to play outside in the summer or sled in the winter. Perfect spot for a small family reunion or church retreat.
Main level/Upstairs:
Walk in beside the TWO-STORY WATERFALL that flows down a wall into a small "pond" below.
LIVING ROOM with lots of comfy seating, 14-foot wood ceilings with massive log beams.
Floor to ceiling windows with expansive view of the continental divide. Arguably the best view in Estes Park!
Soaring stone gas fireplace.
Big flat-screen TV
Powder bath
KITCHEN has it all: Gas range. New dishwasher. Large fridge. Lots of counter space. Big island. Large pantry....Everything you need to cook and enjoy a big family meal. Well-stocked Safeway in town.
DINING ROOM has a sprawling hand-made table with lots of serving space.
DEN just off the living room has more seating, an antique piano and another TV for games.
MASTER BED/BATH is on the main level. King-size log bed. Desk. TV. Walk-in closet. The bathroom has a big walk-in shower with rails and a shower seat available. Or soak in the jetted tub.
The COVERED DECK spreads the full length of the house (over 50 feet long) with lots of hand-made rockers to enjoy that phenomenal MOUNTAIN VIEW!
Also on the main level: The LAUNDRY ROOM with a front-loading washer and dryer and a MUD ROOM with plenty of hooks to hang your coats.
Downstairs/Walkout
Walk downstairs beside the waterfall, then take your pick from multiple bedrooms with king beds that each have private access to the back porch. All of them share the view of the mountains. There are 2 jack-and-jill baths, so each bedroom has its own sink/toilet and shares a tub/shower. There is also a family bedroom with multiple beds and another bathroom.
It took several years to find the perfect spot for our family vacation home. Lots of wonderful memories have been made here. Now your family can make your own, enjoying the wonder and adventure of this private mountain get-away. When you dream of the perfect Rocky Mountain home, you will find it here.
Note: We have adjusted our rates to make this house a bit more accessible for smaller groups. The nightly rate goes up for more people so be sure to enter your total group size to get accurate pricing.
Property Refund Policy
90% refund if reservation is canceled at least 60 days before the arrival date 50% refund if reservation is canceled at least 7 days before the arrival date